Государственный реестр средств измерений (ГРСИ)

ООО "МЕТРОКОНТ", г. Казань

Поверяемое оборудование
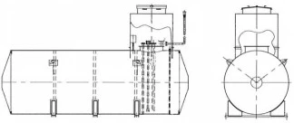
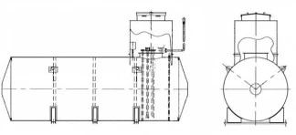
84169-21 84169-21 2021 Резервуары стальные вертикальные цилиндрические теплоизолированные РВС-400 2 поверки 84658-22 84658-22 2022 Резервуар стальной горизонтальный цилиндрический РГС-30 2 поверки 84657-22 84657-22 2022 Резервуары стальные горизонтальные цилиндрические РГС-75 2 поверки 84631-22 84631-22 2022 Резервуары стальные горизонтальные цилиндрические РГС-50 2 поверки 84918-22 84918-22 2022 Резервуары стальные горизонтальные цилиндрические Р-25 2 поверки 84917-22 84917-22 2022 Резервуары стальные горизонтальные цилиндрические Р-25 2 поверки 84976-22 84976-22 2022 Резервуары стальные горизонтальные цилиндрические Р-25 2 поверки 84975-22 84975-22 2022 Резервуары стальные горизонтальные цилиндрические Р-25 2 поверки 85428-22 85428-22 2022 Резервуары стальные вертикальные цилиндрические РВС-1000 2 поверки 85446-22 85446-22 2022 Резервуар стальной горизонтальный цилиндрический РГС-25 2 поверки 85443-22 85443-22 2022 Резервуары стальные горизонтальные цилиндрические РГС-25 2 поверки 85435-22 85435-22 2022 Резервуар стальной горизонтальный цилиндрический РГС-30 2 поверки 85433-22 85433-22 2022 Резервуар стальной горизонтальный цилиндрический РГС-40 2 поверки 85432-22 85432-22 2022 Резервуар стальной горизонтальный цилиндрический РГС-25 2 поверки 85791-22 85791-22 2022 Резервуар стальной горизонтальный цилиндрический РГС-10 2 поверки 85824-22 85824-22 2022 Резервуар стальной горизонтальный цилиндрический РГС-70 2 поверки 85823-22 85823-22 2022 Резервуар стальной горизонтальный цилиндрический РГС-25 2 поверки 86038-22 86038-22 2022 Резервуар стальной вертикальный цилиндрический РВС-20000 2 поверки 86375-22 86375-22 2022 Резервуары стальные вертикальные цилиндрические РВС-3000 2 поверки 86442-22 86442-22 2022 Резервуар стальной вертикальный цилиндрический РВС-400 2 поверки 86436-22 86436-22 2022 Резервуары стальные горизонтальные цилиндрические РГС-75 2 поверки 86526-22 86526-22 2022 Резервуары стальные вертикальные цилиндрические РВС-1000 2 поверки 86524-22 86524-22 2022 Резервуар стальной вертикальный цилиндрический РВС-1000 2 поверки 86555-22 86555-22 2022 Резервуар стальной вертикальный цилиндрический РВСП-700 2 поверки 86539-22 86539-22 2022 Резервуары стальные вертикальные цилиндрические РВСП-2000 2 поверки 86653-22 86653-22 2022 Резервуары стальные вертикальные цилиндрические РВС-400 2 поверки 86739-22 86739-22 2022 Резервуары стальные горизонтальные цилиндрические РГС-75 2 поверки 86738-22 86738-22 2022 Резервуары стальные горизонтальные цилиндрические РГС-50 2 поверки 86733-22 86733-22 2022 Резервуар стальной вертикальный цилиндрический РВСП-1000 2 поверки 86838-22 86838-22 2022 Резервуар стальной горизонтальный цилиндрический РГС-50 2 поверки 86935-22 86935-22 2022 Резервуары стальные горизонтальные цилиндрические РГСД-25 2 поверки 86933-22 86933-22 2022 Резервуар стальной вертикальный цилиндрический теплоизолированный РВС-10000 2 поверки 87021-22 87021-22 2022 Резервуар стальной горизонтальный цилиндрический РГСП-75 2 поверки 87037-22 87037-22 2022 Резервуары стальные горизонтальные цилиндрические Р-БХТ 5/1/1-02 2 поверки 87107-22 87107-22 2022 Резервуары стальные горизонтальные цилиндрические РГД-30(10+10+10) 2 поверки 87092-22 87092-22 2022 Резервуары стальные горизонтальные цилиндрические РГСН-50 2 поверки 87070-22 87070-22 2022 Резервуар стальной горизонтальный цилиндрический РГСП-50 2 поверки 87220-22 87220-22 2022 Резервуары стальные горизонтальные цилиндрические РГС-4 2 поверки 87465-22 87465-22 2022 Резервуары стальные вертикальные цилиндрические теплоизолированные РВС-1500 2 поверки 87647-22 87647-22 2022 Резервуар стальной горизонтальный цилиндрический РГС-10 2 поверки 87734-22 87734-22 2022 Резервуары стальные вертикальные цилиндрические РВС-4000 2 поверки 87733-22 87733-22 2022 Резервуары стальные вертикальные цилиндрические РВС-2000 2 поверки 87732-22 87732-22 2022 Резервуары стальные вертикальные цилиндрические РВС-2000 2 поверки 87664-22 87664-22 2022 Резервуары стальные горизонтальные цилиндрические ЕП8-2000-1300-2 2 поверки 87791-22 87791-22 2022 Резервуары стальные вертикальные цилиндрические РВСП-10000 2 поверки 87935-23 87935-23 2023 Резервуар стальной вертикальный цилиндрический РВСП-200 2 поверки 87934-23 87934-23 2023 Резервуар стальной вертикальный цилиндрический РВСП-1000 2 поверки 88080-23 88080-23 2023 Резервуары стальные горизонтальные цилиндрические РГС-30 2 поверки 88351-23 88351-23 2023 Резервуары стальные вертикальные цилиндрические РВС-1000 2 поверки 88451-23 88451-23 2023 Резервуары стальные горизонтальные цилиндрические РГС-100 2 поверки