Государственный реестр средств измерений (ГРСИ)

Резервуары стальные горизонтальные цилиндрические РГС-25, 85443-22

Резервуары стальные горизонтальные цилиндрические РГС-25 (далее - резервуары) предназначены для измерения объема нефтепродуктов, а также для их приема, хранения и отпуска.
Карточка СИ
Номер в госреестре 85443-22
Наименование СИ Резервуары стальные горизонтальные цилиндрические
Обозначение типа СИ РГС-25
Изготовитель Общество с ограниченной ответственностью "ТАИФ-НК АЗС" (ООО "ТАИФ-НК АЗС"), г. Казань
Год регистрации 2022
МПИ (интервал между поверками) 5 лет
Описание типа скачать
Методика поверки скачать

Назначение

Резервуары стальные горизонтальные цилиндрические РГС-25 (далее - резервуары) предназначены для измерения объема нефтепродуктов, а также для их приема, хранения и отпуска.

Описание

Тип резервуаров - стальные горизонтальные цилиндрические, номинальной вместимостью 25 м3 подземного расположения.

Принцип действия резервуаров основан на заполнении их нефтепродуктом до определенного уровня, соответствующего заданному значению объема.

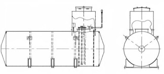
Резервуары представляют собой горизонтально расположенный цилиндрический стальной сосуд с днищами.

Заполнение и выдача продукта осуществляется через приемно-раздаточные патрубки. Заводские номера резервуаров наносятся на крышку люка резервуара.

Резервуары РГС-25 с заводскими номерами 5, 6 расположены по адресу: Тукаевский район, М7, 1070 км, справа, а/д Набережные Челны-Мензелинск, поворот на с/з Татарстан, АЗС №202 ООО «ТАИФ-НК АЗС».

Общий вид резервуаров РГС-25 представлен на рисунках 1, 2.

Нанесение знака поверки на средство измерений не предусмотрено.

Программное обеспечение

Рисунок 1 - Общий вид резервуаров РГС-25

отсутствует

Технические характеристики

Таблица 1 - Метрологические характеристики

Наименование характеристики

Значение

Номинальная вместимость, м3

25

Пределы допускаемой относительной погрешности определения вместимости, %

±0,25

Наименование характеристики

Значение

Условия эксплуатации:

Температура окружающего воздуха, оС

от -50 до +50

Атмосферное давление, кПа

от 84,0 до 106,7

Средний срок службы, лет, не менее

20

Знак утверждения типа

наносится на титульный лист паспорта резервуара типографским способом. Комплектность средства измерений.

Таблица 3 - Комплектность средства измерений

Наименование

Обозначение

Количество

Резервуар стальной горизонтальный цилиндрический

РГС-25

1 шт.

Паспорт

-

1 экз.

Градуировочная таблица

-

1 экз.

Сведения о методах измерений

приведены в пункте 8 паспорта на резервуар.

Нормативные документы, устанавливающие требования к резервуарам стальным горизонтальным цилиндрическим РГС-25

Приказ Росстандарта № 256 от 7 февраля 2018 г. «Об утверждении Государственной поверочной схемы для средств измерений массы и объема жидкости в потоке, объема жидкости и вместимости при статических измерениях, массового и объемного расходов жидкости»

Зарегистрировано поверок 2
Поверителей 1
Актуальность данных 23.04.2026
85443-22
Номер в ГРСИ РФ:
85443-22
Производитель / заявитель:
Общество с ограниченной ответственностью "ТАИФ-НК АЗС" (ООО "ТАИФ-НК АЗС"), г. Казань
Год регистрации:
2022
Похожие СИ
98268-26
98268-26
2026
Guoyi (Beijing) Analytical Instrument Co., LTD
Срок действия реестра: 16.04.2031
98270-26
98270-26
2026
«NCS Testing Technology (Germany) GmbH»
Срок действия реестра: 16.04.2031
98271-26
98271-26
2026
Hunan Next Generation Instrumental Т&С Tech. Co., Ltd
Срок действия реестра: 16.04.2031
98272-26
98272-26
2026
«Mettler Toledo (Changzhou) Measurement Technology Ltd.»
Срок действия реестра: 16.04.2031
98273-26
98273-26
2026
K-MET
Срок действия реестра: 16.04.2031
98274-26
98274-26
2026
Индивидуальный предприниматель Титова Анастасия Вячеславовна
Срок действия реестра: 16.04.2031
98275-26
98275-26
2026
«Chongqing Aurumsense Security Instrument System Co., LTD.».
Срок действия реестра: 16.04.2031