Государственный реестр средств измерений (ГРСИ)

Резервуар горизонтальный стальной двустенный РГСД-25, 90349-23

Резервуар горизонтальный стальной двустенный РГСД-25 (далее - резервуар) предназначен для измерения объема нефти и нефтепродуктов, а также для их приема, хранения и отпуска.
Карточка СИ
Номер в госреестре 90349-23
Наименование СИ Резервуар горизонтальный стальной двустенный
Обозначение типа СИ РГСД-25
Изготовитель Общество с ограниченной ответственностью "Техмонтажспецстрой" (ООО "Техмонтажспецстрой"), Ставропольский край, г. Пятигорск
Год регистрации 2023
МПИ (интервал между поверками) 5 лет
Описание типа скачать
Методика поверки скачать

Назначение

Резервуар горизонтальный стальной двустенный РГСД-25 (далее - резервуар) предназначен для измерения объема нефти и нефтепродуктов, а также для их приема, хранения и отпуска.

Описание

Тип резервуара - горизонтальный стальной двустенный, номинальной вместимостью 25 м3 подземного расположения.

Принцип действия резервуара основан на заполнении его нефтью или нефтепродуктом до определенного уровня, соответствующего заданному значению объема.

Резервуар представляет собой горизонтально расположенный цилиндрический стальной двустенный сосуд с днищами.

Заполнение и выдача продукта осуществляется через приемно-раздаточные патрубки.

Заводской номер резервуара в виде цифрового обозначения, состоящий из арабских цифр, нанесен типографским способом на табличку резервуара. Табличка крепится к люку резервуара.

Резервуар РГСД-25 с заводским номером 360 расположен по адресу: Республика Южная Осетия, нп Знаур.

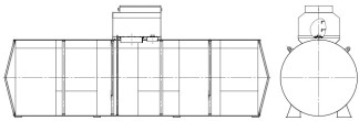
Эскиз общего вида резервуара приведен на рисунке 1. Фотография горловины и измерительного люка приведена на рисунке 2.

Нанесение знака поверки на средство измерений не предусмотрено.

Рисунок 1 - Эскиз общего вида резервуара

Рисунок 2 - Горловина и измерительный люк резервуара РГСД-25 зав.№360 Пломбирование резервуара РГСД-25 не предусмотрено.

Технические характеристики

Таблица 1 - Метрологические характеристики

Наименование характеристики

Значение

Номинальная вместимость, м3

25

Пределы допускаемой относительной погрешности определения вместимости (объемный метод), %

±0,25

Технические характеристики

Наименование характеристики

Значение

Условия эксплуатации:

Температура окружающего воздуха, оС

Атмосферное давление, кПа

от -50 до +50 от 84,0 до 106,7

Средний срок службы, лет, не менее

20

Знак утверждения типа

наносится на титульный лист паспорта резервуара типографским способом.

Комплектность

Таблица 3 - Комплектность средства измерений

Наименование

Обозначение

Количество

Резервуар горизонтальный стальной двустенный

РГСД-25

1 шт.

Паспорт

-

1 экз.

Градуировочная таблица

-

1 экз.

Сведения о методиках (методах) измерений приведены в пункте 8 паспорта на резервуар.

Нормативные документы

Приказ Федерального агентства по техническому регулированию и метрологии от 26 сентября 2022 г. № 2356 «Об утверждении Государственной поверочной схемы для средств измерений массы и объема жидкости в потоке, объема жидкости и вместимости при статических измерениях, массового и объемного расходов жидкости».

Зарегистрировано поверок 1
Поверителей 1
Актуальность данных 24.04.2026
90349-23
Номер в ГРСИ РФ:
90349-23
Производитель / заявитель:
Общество с ограниченной ответственностью "Техмонтажспецстрой" (ООО "Техмонтажспецстрой"), Ставропольский край, г. Пятигорск
Год регистрации:
2023
Похожие СИ
98268-26
98268-26
2026
Guoyi (Beijing) Analytical Instrument Co., LTD
Срок действия реестра: 16.04.2031
98270-26
98270-26
2026
«NCS Testing Technology (Germany) GmbH»
Срок действия реестра: 16.04.2031
98271-26
98271-26
2026
Hunan Next Generation Instrumental Т&С Tech. Co., Ltd
Срок действия реестра: 16.04.2031
98272-26
98272-26
2026
«Mettler Toledo (Changzhou) Measurement Technology Ltd.»
Срок действия реестра: 16.04.2031
98273-26
98273-26
2026
K-MET
Срок действия реестра: 16.04.2031
98274-26
98274-26
2026
Индивидуальный предприниматель Титова Анастасия Вячеславовна
Срок действия реестра: 16.04.2031
98275-26
98275-26
2026
«Chongqing Aurumsense Security Instrument System Co., LTD.».
Срок действия реестра: 16.04.2031